40 Campden Green, Solihull, West Midlands, B92 8HG

  • Conditional Online Auction Sale
  • Guide Price* : £200,000
  • Bedrooms: 2
  • Bathrooms: 1
  • Reception Rooms: 1

MODERN AUCTION PROPERTY - T&C's and Buyers Fees Apply. An end-terrace property with views to front over a communal green. Offering accommodation comprising a spacious lounge/diner, fitted kitchen, two double bedrooms, bathroom, driveway parking and a South/Westerly facing rear garden with timber summer house with bar

Description

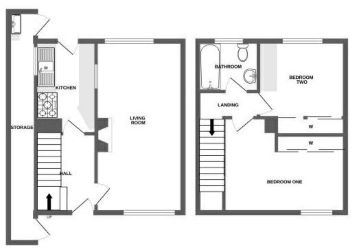
MODERN AUCTION PROPERTY - T&C's and Buyers Fees Apply. An end-terrace property with views to front over a communal green. Offering accommodation comprising a spacious lounge/diner, fitted kitchen, two double bedrooms, bathroom, driveway parking and a South/Westerly facing rear garden with timber summer house with barSolihull is situated in the heart of England and is considered to be one of the most highly sought after residential areas in the country boasting a range of local amenities including excellent schools, colleges, parks, restaurants, bars and an excellent variety of shopping centres including Touchwood shopping centre and Resorts World. Solihull has convenient road networks linking the M42, M6, M40, M1 and M5 giving easy access to the NEC Arena, Birmingham International Airport and Railway Station.Property FrontageThe property is set back from the road behind gated leading to a stone chipped and paved driveway providing off road parking, three timber storage sheds and a canopy porch with an obscure glazed composite door leading intoEntrance HallwayWith wall and ceiling light points, radiator, stairs leading to the first floor accommodation and obscure glazed door leading off toSpacious Through Lounge/Diner - 6.12m x 3.15m (20'1" x 10'4")With double glazed windows to front and rear elevations, radiator, wall and ceiling light points and decorative fireplace with tiled hearth and wooden surroundFitted Kitchen to Rear - 2.92m x 1.93m (9'7" x 6'4")Being fitted with a range of wall, drawer and base units with tiled and wooden surfaces over and a large inset sink. Space for freestanding Range style cooker with extractor canopy over, space for fridge, tiling to walls, radiator, ceiling light point, ceiling beams, double glazed window to side and composite door leading out to the rear gardenLanding With radiator, ceiling light point, obscure double glazed window to side, loft hatch and doors leading off toBedroom One to Front - 4.29m x 3.18m (14'1" x 10'5")With two double glazed windows to front elevation, fitted wardrobes, double doors to over stairs storage, ceiling beams, radiator, wall lighting and ceiling light with fanBedroom Two to Rear - 3.1m x 2.79m (10'2" x 9'2")With double glazed window to rear elevation, fitted wardrobes and storage, radiator and ceiling light points and fanBathroom to Rear - 2.01m x 1.98m (6'7" x 6'6")Being fitted with a three piece suite comprising a panelled bath with thermostatic shower over and glazed screen, pedestal wash hand basin and a low flush W.C. Tiling to walls, tiled flooring, obscure double glazed window to rear, radiator and ceiling light pointSouth/Westerly Facing Rear GardenBeing paved with raised shrub borders, covered decked seating terrace, various timber storage sheds, timber summer house with bar area, power and lighting, fencing to boundaries and double glazed door to side passage with polycarbonate roof and further double glazed door to property frontageTenureWe are advised by the vendor that the property is freehold. We would advise all interested parties to obtain verification through their own solicitor or legal representative. EPC supplied by vendor. Current council tax band – BProperty Misdescriptions ActSmart Homes have not tested any equipment, fixtures, fittings or services mentioned and do not by these Particulars or otherwise verify or warrant that they are in working order. All measurements listed are given as an approximate guide and must be carefully checked by and verified by any Prospective Purchaser. These particulars form no part of any sale contract. Any Prospective Purchaser should obtain verification of all legal and factual matters and information from their Solicitor, Licensed Conveyancer or Surveyors as appropriate.Auctioneer CommentsThis property is for sale by the Modern Method of Auction. Should you view, offer or bid on the property, your information will be shared with the Auctioneer, Brookvale Auctions This method of auction requires both parties to complete the transaction within 56 days of the draft contract for sale being received by the buyers solicitor (for standard Grade 1 properties). This additional time allows buyers to proceed with mortgage finance (subject to lending criteria, affordability and survey). The buyer is required to sign a reservation agreement and make payment of a non-refundable Reservation Fee. This being 4% of the purchase price plus VAT, subject to a minimum of £8,000.00 plus VAT. The Reservation Fee is paid in addition to purchase price and will be considered as part of the chargeable consideration for the property in the calculation for stamp duty liability. Buyers will be required to go through an identification verification process with Brookvale Auctions and provide proof of how the purchase would be funded. This property has a Buyer Information Pack which is a collection of documents in relation to the property. The documents may not tell you everything you need to know about the property, so you are required to complete your own due diligence before bidding. A sample copy of the Reservation Agreement and terms and conditions are also contained within this pack. The property is subject to an undisclosed Reserve Price with both the Reserve Price and Starting Bid being subject to change.Referral ArrangementsThe Partner Agent and Auctioneer may recommend the services of third parties to you. Whilst these services are recommended as it is believed they will be of benefit; you are under no obligation to use any of these services and you should always consider your options before services are accepted. Where services are accepted the Auctioneer or Partner Agent may receive payment for the recommendation and you will be informed of any referral arrangement and payment prior to any services being taken by you.

Council Tax Band

B

* Generally speaking Guide Prices are provided as an indication of each seller's minimum expectation, i.e. 'The Reserve'. They are not necessarily figures which a property will sell for and may change at any time prior to the auction. Virtually every property will be offered subject to a Reserve (a figure below which the Auctioneer cannot sell the property during the auction) which we expect will be set within the Guide Range or no more than 10% above a single figure Guide.

Loading the bidding panel...

Agreement Documents

Legal Documents

Log in to view legal documents

Related Documents

Virtual Tour

Virtual Tour

Make an Enquiry

Submit an enquiry and someone will be in contact shortly.

 
*  
*  
*
*
*

Share