Summer Palace Birmingham Road, Mappleborough Green, Studley, Warwickshire, B80 7DF

  • Conditional Online Auction Sale
  • Guide Price* : £1,200,000

MODERN AUCTION PROPERTY - T&C's and Buyers Fees Apply - A detached single storey property which has been extended over a number of years, being brick built under both pitched and flat roofs. The business benefits from circa 30+ plus parking spaces to the front elevation with an enclosed yard and further rear garden/yard.

Description

LocationThe Summer Palace Restaurant and potential development site is located close to the western boundary of Stratford District Council with the Eastern edge of Redditch. The site lies South of the junction of Birmingham Road (A435), Warwick Highway and Henley Road (A4189) and being approximately 1 mile north of Mappleborough Green and just to the East of Redditch suburbs of Winyates and Matchborough. The opportunity is located in a busy spot with a various garden centres, petrol station and the Harvester Inn, all of which will generate excellent levels of passing traffic.DescriptionA detached single storey property which has been extended over a number of years, being brick built under both pitched and flat roofs. The business benefits from circa 30+ plus parking spaces to the front elevation with an enclosed yard and further rear garden/yard.

The property benefits from a customer car park to the front elevation providing circa 30 parking spaces. Further driveway to the side elevation with access to an enclosed private courtyard and outbuildings, with a further larger yard to the rear.AccommodationThe accommodation briefly comprises ground floor access via the main entrance to the front customer carpark. The entrance lobby gives direct access into the main reception and waiting area, with peripheral cushioned seating and freestanding chairs (20). Being served by a bar servery and open plan access into the ’L’ shaped Restaurant area which is laid entirely for dining with freestanding table and chairs which provide approximately 80 covers and being served by a further bar servery.Ancillary accommodation briefly comprises: Catering Kitchen fitted with a range of stainless-steel fittings, prep area, dry stores, ladies and gentleman’s customer toilets.

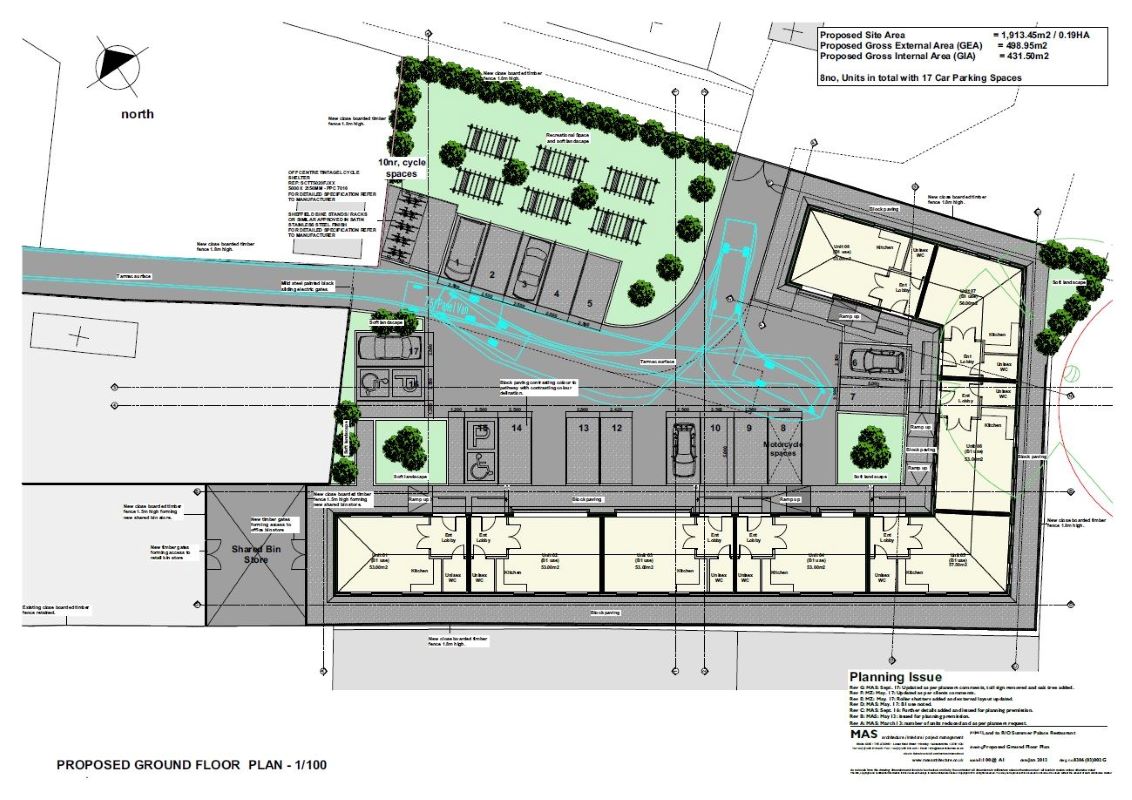
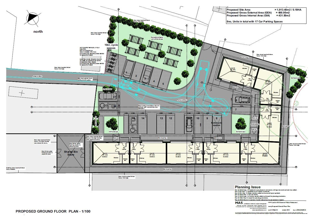
ServicesMain gas, mains water, main electric, main drainageTermsSole selling right agreementRates£13,000 + VATViewingViewing strictly by appointment only through Smarthomes Shirley Office. Covid GuidelinesParkingYesPlanningAn application was granted by Stratford on Avon District Council to develop the land to the rear of the Summer Palace Restaurant, namely for the development of 8 No. Single Storey Class E use Class (Commercial, Business and Services), with associated parking areas. Planning Permission was granted on the 27th October 2017 with permission expiring on the 1st May 2021.

This property is for sale by the Modern Method of Auction. Should you view, offer or bid on the property, your information will be shared with the Auctioneer, Brookvale Auctions. This method of auction requires both parties to complete the transaction within 56 days of the Fee being paid and reservation form being returned.

The buyer is required to sign a reservation agreement and make payment of a non-refundable Reservation Fee. This being a minimum of £10,000 Plus VAT or 4% Plus VAT. The Reservation Fee is paid in addition to purchase price and will be considered as part of the chargeable consideration for the property in the calculation for stamp duty liability.

Buyers will be required to go through an identification verification process with Brookvale Auctions and provide proof of how the purchase would be funded. This property has a Buyer Information Pack which is a collection of documents in relation to the property. The documents may not tell you everything you need to know about the property, so you are required to complete your own due diligence before bidding.

A sample copy of the Reservation Agreement and terms and conditions are also contained within this pack. The property is subject to an undisclosed Reserve Price with both the Reserve Price and Starting Bid being subject to change. Referral Arrangements Partner Agent and Auctioneer may recommend the services of third parties to you. Whilst these services are recommended as it is believed they will be of benefit, you are under no obligation to use any of these services and you should always consider your options before services are accepted.

Where services are accepted the Auctioneer or Partner Agent may receive payment for the recommendation and you will be informed of any referral arrangement and payment prior to any services being taken by you

* Generally speaking Guide Prices are provided as an indication of each seller's minimum expectation, i.e. 'The Reserve'. They are not necessarily figures which a property will sell for and may change at any time prior to the auction. Virtually every property will be offered subject to a Reserve (a figure below which the Auctioneer cannot sell the property during the auction) which we expect will be set within the Guide Range or no more than 10% above a single figure Guide.

Loading the bidding panel...

Agreement Documents

Legal Documents

Log in to view legal documents

Related Documents

Make an Enquiry

Submit an enquiry and someone will be in contact shortly.

 
*  
*  
*
*
*

Share